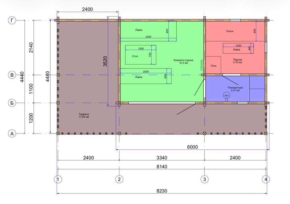
Баня 6*3.5 метра с террасой и качелью
Связаться с инженером в мессенджере
Звоните по номеру +7-993-601-50-45 или оставляйте заявку на сайте
Другое наполнение
Другой размер
Я отвечаю на звонки и быстро сориентирую вас по всем строительным вопросам
Но если вы хотите дополнительные опции, мы их рассчитаем отдельно
Стоимость бани в базовой комплектации на сайте актуальная
Или приезжайте на выставку и производство бань
Посетите выставку или производство. Познакомьтесь с нами лично. Получите индивидуальные условия
Контакты
Замерщик выезжает ежедневно с 9.00 до 19.00 по Москве и МО.
Выезд замерщика бесплатный.
Записывайтесь на замер заранее, все сотрудники загружены
Выезд замерщика бесплатный.
Записывайтесь на замер заранее, все сотрудники загружены
Адрес выставки: 2-й Вязовский проезд, 22с1 (м. Окская)
Работаем с 9.00 до 19.00 ежедневно
Работаем с 9.00 до 19.00 ежедневно